Winchester, California » Adelines Farm » 32610 Spun Cotton Drive

32610 Spun Cotton Drive

$ 770,000

Winchester, CA 92596

Closed

5 Beds, 3 Baths, 3,724 sq. ft.

Sold: 09/29/2022


Listing provided by agent Saundra Stormer-Simm BRE# 01308120 at First Team Real Estate, Tem.


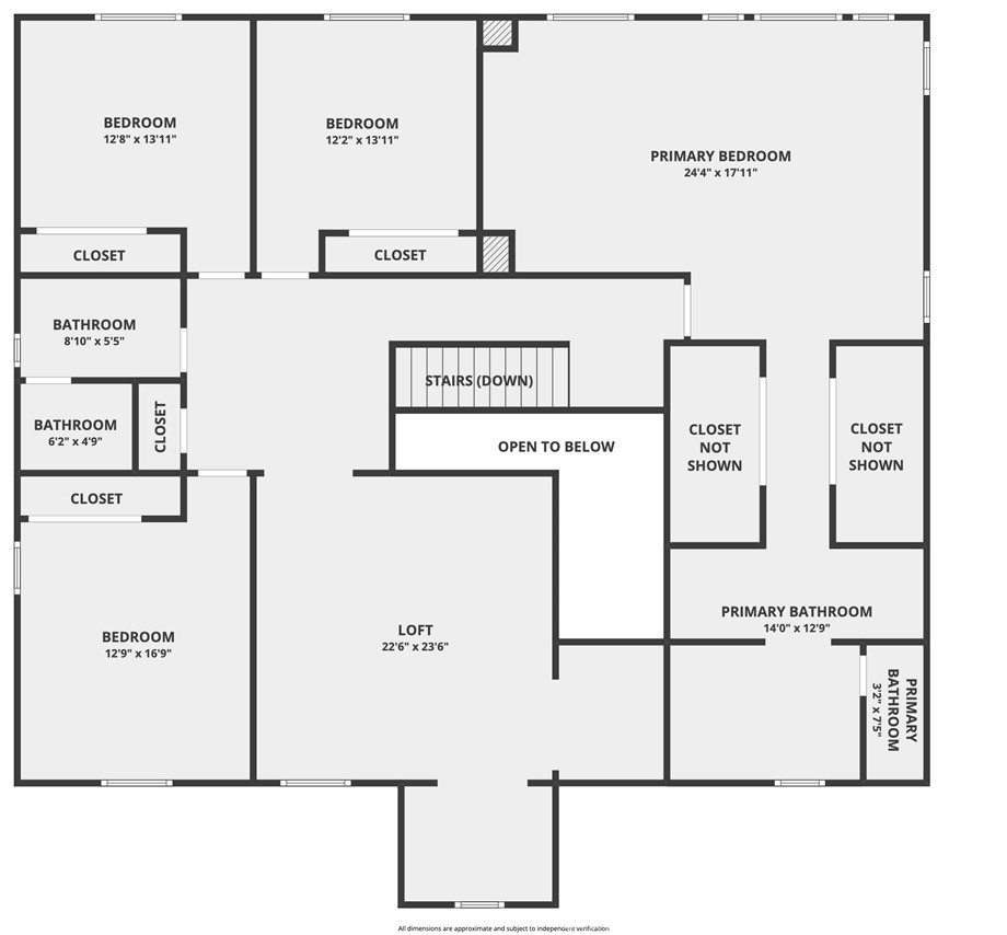
RV Parking! 4 Car Tandem Garage! Two EV Outlets! SOLAR! This stunning 3724 square foot, 5 bed/3 bath home resides in the highly sought after Adeline's Farm community. Spacious and open floor plan that flows. The first floor is highlighted by a spectacular kitchen, centrally located between a private breakfast nook and welcoming family room. Gather around the huge island, new quartz countertops, upgraded stainless steel appliances and white Thermofoil cabinetry with glass accents that flows directly to the family room with gas fireplace. Capacity for 5.1 digital surround. Step out to the spacious back patio with drought-tolerant landscaping. Main floor features a guest bedroom, a full bathroom, open formal living and dining room. Treat yourself to the massive loft area with built-in tech center and reading alcove. Three generous-sized bedrooms, full-size bathroom and an oversized primary suite with two mirror walk-in closets, large jetted soaking tub, separate shower, and upgraded tile inlays. Beautiful luxury vinyl flooring, new carpeting, Hunter Douglas cellular shades on all the windows, and recessed lighting with dimmer switches in all rooms. Solar added with the capacity to add a pool. Bistro lights along the fence in backyard are on remote and dimmer! Located within the Temecula School District and conveniently located close to Temecula Wineries, Parks, Shopping and Entertainment. Let's welcome you to your new home!

Aerial View:

Quick Facts:

  • Home Size: 3,724 sq.ft.
  • Price/sq.ft.: $214.80
  • Lot Size: 7,841 sq.ft.
  • Built in 2006
  • Garages Spaces: 4
  • Fireplace

Map:

Property Details:

Assessor’s Parcel Number 964492034
Days on Market 1223
Last Modified September 30th at 10:21am
Listing Status Closed
Price Per Sq. Ft. $214.80
Property Type Single Family Residence
Sewage System Public Sewer
Style Spanish
Utilities Electricity Connected, Natural Gas Connected, Sewer Connected, Water Connected
Virtual Tour Click here
Water Source Public
Year Built 2006

Interior Features:

Appliances Built-In Range, Dishwasher, Disposal, Gas Cooktop, Gas Water Heater, Microwave, Range Hood, Water Heater
Bathrooms 3 full baths
Bedrooms 5
Cooling Central Air, See Remarks
Fireplace Family Room, Gas
Floorspace 3,724 sq. ft.
Floor Laminate, Vinyl
Heating Central, Solar
Interior Features Ceiling Fan(s), High Ceilings, Open Floorplan, Recessed Lighting, Tandem, Wired for Data, Wired for Sound
Laundry Facilities Gas Dryer Hookup, Individual Room, Inside

Exterior Details:

Acres 0.18
Lot Size 7,841 sq. ft.
Garage Spaces 4
Parking Garage, Garage - Two Door, Garage Door Opener, RV Access/Parking, RV Potential
Patio Concrete, Patio, Slab

School Information:

School District Temecula Unified

Nearby Schools in Winchester

School Name Parent Rating Distance Map

4.5 mi.

2.3 mi.

4.6 mi.

School data provided by GreatSchools. School service boundaries are intended to be used as reference only. To verify enrollment eligibility for a property, contact the school directly.



Updated: 2022-09-30 10:21:18

Any questions? Contact Tom Bashe.